






Las torres Kio fueron diseñadas por el arquitecto Philip Johnson ( discípulo de Mies van der Rohe)
La solución estructural a su inclinación se lleva a cabo a través de acero estructural, unido a un núcleo rígido, una caja prismática de hormigón armado que alberga las escaleras y ascensores.
Para contrarrestar el empuje de los pisos hacia el lado inclinado, un sistema de cables une la parte alta del edificio con un contrapeso subterráneo ubicado en el lado opuesto (los contrapesos son dados de hormigón de 60 x 10 x 10 m). Al mismo tiempo se optó por elementos triangulares que dieran rigidez a la estructura y eviten deformaciones; de ahí las aspas gigantes en las fachadas laterales y los dos triángulos en que se dividen las fachadas principales.
El diseño estructural corresponde a la firma Leslie F. Robertson Associates, la que también calculó las Torres Gemelas de Nueva York (diseño de Minoru Yamasaki), la Torre del banco de China en Hong Kong y el Museo Miho en Japón, ambas obras de I.M.Pei .
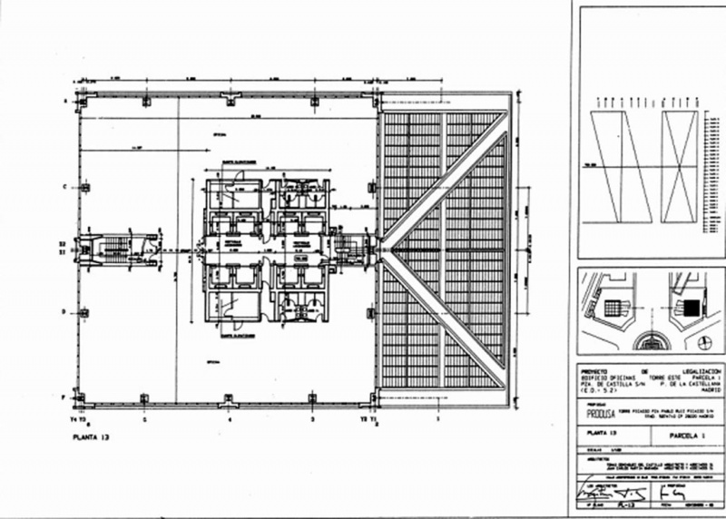
Las torres de oficinas que alcanzan los 115 m de altura cada una (una de las torres es 1 cm más alta que la otra) y vuelan 30 m sobre la vertical de la base. Poseen 27 pisos cuya área es 1.170 m2 cada una. Ya que los ascensores suben vertical y no diagonalmente, cada planta tiene un desarrollo distinto.
Aún así, dado que la vertical del vértice de la base coincide con el vértice superior, hubo que dividir los ascensores en dos partes: se sube hasta el piso 13 y desde allí se cambia a otro ascensor hasta el piso 27.
El secreto de su construcción se basa en que la mayoría de su peso descansa sobre un eje central de hormigón y acero que estructura cada una de ellas, mientras que la parte “inclinada” de cada una de las torres es mucho más ligera.
Las Torres KIO son dos torres de cristal, granito y metal, colocadas simetricamente con respecto al eje Castellana